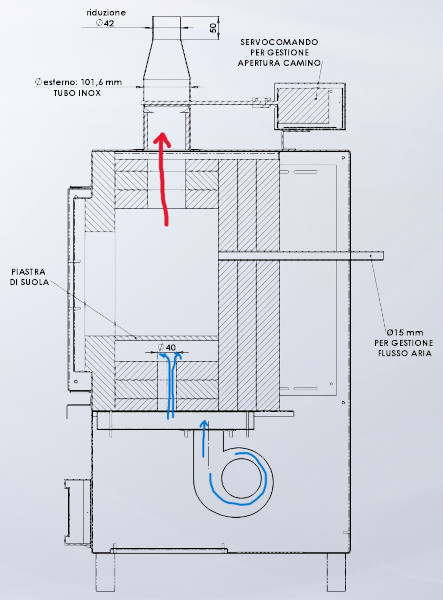
MUFFOLA A SUOLA FISSA
Forno LKN-40-600-CA
Forno elettrico da laboratorio costruito con una capacità di volume di circa 40 litri.
Può operare fino ad una temperatura massima di esercizio di 1100°C.

DETTAGLI TECNICI
• elementi riscaldanti, montati nei fianchi e nella suola
• carpenteria a doppia parete con ventilazione naturale
• apertura con porta a bandiera
• il forno non è dotato di tenute
• micro-interruttore di sicurezza sulla porta
• controllo della temperatura e del ciclo di cottura mediante programmatore LUMEL RE-82
• termocoppia tipo K
• camino superiore di scarico (automatico)
• camino posteriore




