MUFFOLA A SUOLA FISSA
Forno GFHTK.LS-36-16
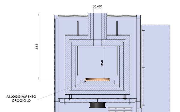
Forno elettrico costruito con una capacità di volume di circa 36 litri.
Può operare fino ad una temperatura massima di esercizio di 1600°C.

DETTAGLI TECNICI
• struttura in acciaio verniciato a fuoco
• bussolotto interno (camera del forno) in acciaio inox
• camera di cottura a sezione cubica (volume circa 36 L)
• base di supporto per il crogiolo, intercambiabile
• isolamento termico in fibra ceramica di qualità per alte temperature
• n° 6 resistenze in disiliciuro di molibdeno Le.350 mm
• quadro di comando dotato di programmatore
• termocoppia per gestione forno, tipo R
• unità statica per la gestione delle resistenze in MoSi2
• uniformità di temperatura ± 3°C su tutta la camera





